| 標題 | 公告:性別友善廁所規劃設計示意圖 |
|---|---|
| 訊息分類 | 總務處 |
| 公告單位 | 事務組長 |
| 日期起迄 | 2025-10-31 00:00~2025-11-06 23:50 更新時間: 2025-10-31 12:07:33 |
| 訊息內容 |
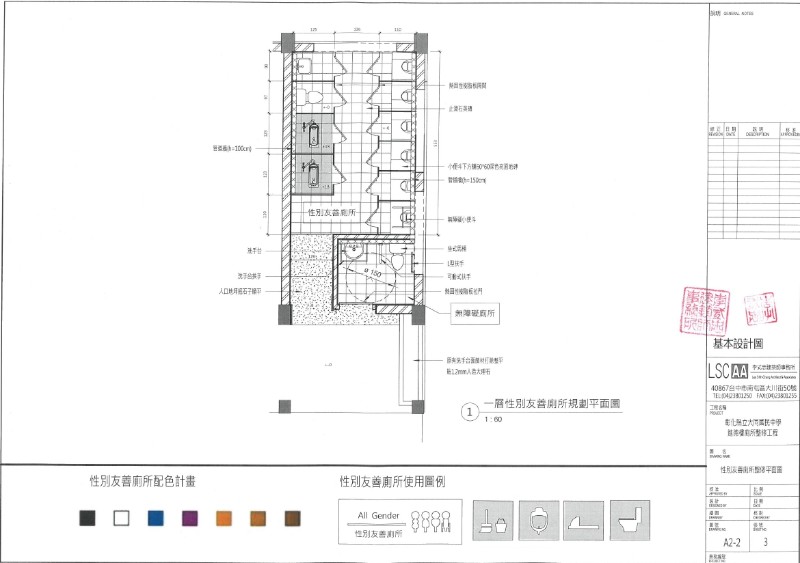
本校獲縣府核定補助114年公立國民中小學老舊廁所整修工程-進德樓東側設計款,預計於1F設置性別友善廁所,基本規劃設計示意圖如下,如有其他寶貴意見,請於114年11月6日前提供總務處,俾便蒐集意見後列入後續規劃 。
|